Les infos Essentielles
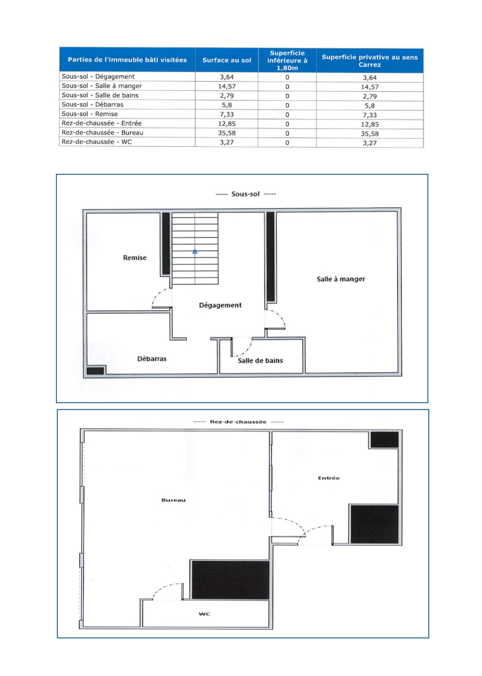
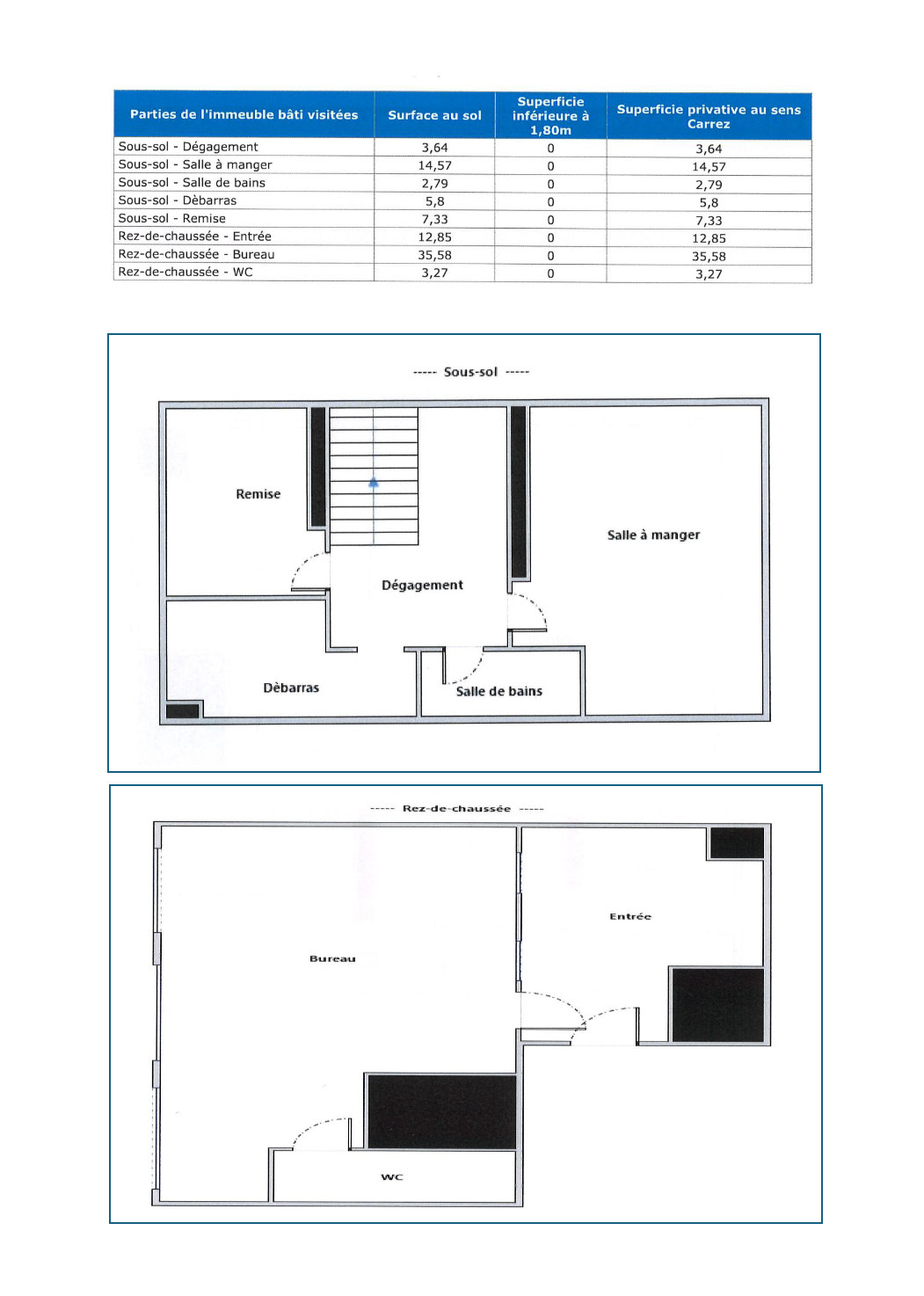
A louer local commercial 86 M² centre ville , bureaux commerces sans nuisances, vitrine 8 mètres, rdc 52 M² climatisé, exposé ouest, accès direct sous sol aménagé 34 M² avec espace stockage, cuisine, douche. Entrée rue et entrée immeuble privative, place de stationnement en sous sol. Loyer mensuel 2300 euros ht et hors charges. Immeuble récent, locaux refait à neuf il y a 3 ans, aucun travaux
* HC : Hors charges
Localisation Du bien
-
Commerces et santé
-
Loisirs
-
Ecoles
-
Transports
-
Pratique
Les infos Energetiques
La base légale du traitement repose sur l’intérêt légitime de l'Agence / du Réseau.
Elles sont conservées jusqu'à demande de suppression et sont destinées à l'Agence / au Réseau.
Conformément à la loi « informatique et libertés », vous pouvez exercer votre droit d'accès aux données vous concernant et les faire rectifier en contactant l'Agence / le Réseau.
Si vous estimez, après avoir contacté l'Agence / le Réseau, que vos droits « Informatique et Libertés » ne sont pas respectés, vous pouvez adresser une réclamation à la CNIL.
Nous vous informons de l’existence de la liste d'opposition au démarchage téléphonique « Bloctel », sur laquelle vous pouvez vous inscrire ici : https://www.bloctel.gouv.fr
Dans le cadre de la protection des Données personnelles, nous vous invitons à ne pas inscrire de Données sensibles dans le champ de saisie libre
Ce site est protégé par reCAPTCHA, les Politiques de Confidentialité et les Conditions d'Utilisation de Google s'appliquent.
